
restaurante/mercearia
design de interiores / mobiliário
interior design / furniture
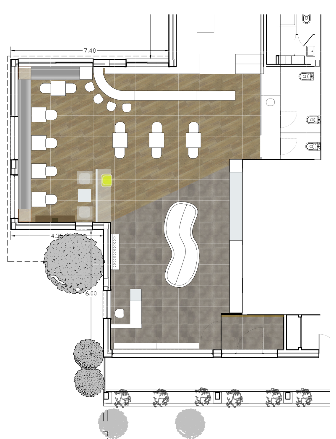
O design de interiores do novo espaço de restauração / loja foi um desafio que começou pela organização espacial e definição de áreas. A partir do layout definido foram desenhadas peças de mobiliário à medida, distribuídas pelos dois espaços : mercearia e restaurante. A planta da mercearia distribui-se à volta da mesa de exposição central na zona de entrada.
The interior design of the new restaurant/store space was a challenge that began with the spatial organization and definition of areas. Based on the defined layout, custom-made pieces of furniture were designed, distributed in the two spaces: grocery store and restaurant. The grocery store layout is distributed around the central display table in the entrance area.



Àrea de intervenção : 110 m2
O conceito para o espaço segue a linha da alimentação natural e equilibrada. Além de serem servidos pratos confeccionados com ingredientes cuidados, também é possível adquirir estes produtos na loja.
Também há oferta de livros com receitas que seguem estes princípios de equilíbrio e espiritualidade.

O mobiliário de exposição foi desenhado para decorar o espaço mostrar produto da melhor forma.
A mesa central de produtos frescos é a peça central da área de mercearia.
Optou-se por diferenciar as áreas através do pavimento.
Piso cerâmico de betão industrial na zona de mercearia e soalho de carvalho na zona de restaurante.
A iluminação é funcional e direccionada para o produto na frente da mercearia e ambiental / decorativa na zona de refeições.




Materiais
Foram definidos materiais funcionais e resistentes com cariz natural - pavimentos cerâmicos, madeira de bétula, betão e valcromat.


dispensadores self-service
Uma mercearia que se preocupa com o ambiente tem de servir alimentos granulados a granel, tal como acontecia nas antigas mercearias.
O expositor permite uma fácil identificação, doseamento e pesagem das porções servidas.














Outros Projectos
I'm Growing Nowcorporate animation
Município São João da PesqueiraBTL / SISAB 2020 - stand
Sweet Potatobranding
Lousada guarda riosgraphic identity
Maison PrinceBaselworld 2016 stand
MLbranding
Farmácia Hospital de São Joãocorporate identity
Wooden office dividersfurniture
FRICONEuroshop 2020 stand proposal
3D Arquitectura3D modeling / rendering
Lousadapop-up card
Mata de Vilarsignage system
convite casamentographic design